blog

Acompanhe as principais novidades sobre o escritório Horizontes Arquitetura e Urbanismo, premiações, novos projetos, publicações e anúncios de vagas.

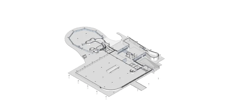
MAP - MUSEU DE ARTE PAMPULHA

 

O Conjunto arquitetônico da Pampulha foi construído em 1942 e é composto pelo Cassino da Pampulha, Igreja de São Francisco de Assis, Casa do Baile e Iate Clube. Os projetos foram feitos pelo arquiteto Oscar Niemeyer a pedido de Juscelino Kubitscheck, na época prefeito de Belo Horizonte.

Pela qualidade de sua arquitetura, revolucionaria para a época, o Conjunto da Pampulha é considerado um marco da arquitetura modernista mundial sendo, até hoje, referência para arquitetos de todo o mundo. Muitos críticos de arquitetura consideram o projeto do Cassino, atual Museu de Arte da Pampulha (MAP), como o melhor projeto de Niemeyer. 

Atualmente o conjunto é protegido através de tombamento integral pelo patrimônio histórico em três instâncias (municipal-DIPC, estadual-IEPHA e federal-IPHAN). Além disso, em 2016, o Conjunto da Pampulha alcançou um novo patamar sendo reconhecido como Patrimônio Cultural da Humanidade pela Unesco.

O uso do edifício como Cassino foi interrompido em 1946, quando foram proibidos os jogos de azar no Brasil. O prédio ficou sem uso até 1957, quando foi criado o Museu de Arte de Belo Horizonte, atual Museu de Arte da Pampulha.

Embora a edificação tenha passado por uma série de reformas e adaptações para funcionar como Museu ainda são necessárias diversas melhorias.

Diante da importância do edifício e da urgência em restaura-lo e melhor adaptá-lo para funcionamento como museu, a diretoria do MAP, Fundação Municipal de Cultura e a Prefeitura de Belo Horizonte contrataram a Horizontes Arquitetura e Urbanismo, através de licitação pública, para desenvolver um projeto completo (arquitetura e engenharias) de restauração do museu.

Os projetos foram iniciados em 2012 e finalizados em 2014, sendo fundamentais para compor o dossiê apresentado à Unesco para reconhecimento da Pampulha como patrimônio mundial da humanidade. 

A primeira etapa do trabalho, realizada em 2012, compreendeu levantamento cadastral, pesquisa histórica e diagnóstico de restauração. O resultado do diagnóstico indicou que o edifício se encontra em mal estado de conservação. Os principais danos encontrados estão ligados à presença de infiltrações e umidade, aliadas a intervenções inadequadas e à acomodação do terreno, o que resultou em deformações estruturais. Materiais nobres e raros encontram-se degradados e precisam de processos especiais de recuperação.

Complementando o diagnóstico, foi realizada intensa pesquisa histórica que ajudou a comparar a proposta original de Niemeyer com as necessidades atuais e com as alterações que foram feitas ao longo do tempo. Concluiu-se que, por não ter sido concebido originalmente para funcionar como museu, o edifício não possui espaços adequados para exposição. Os grandes salões envidraçados não oferecem condições de controle de luz e temperatura. As reservas técnicas, adaptadas no nível inferior, têm problemas com excesso de umidade, além de não terem espaço suficiente para abrigar todo o acervo. 

Levando em consideração as informações da primeira etapa, iniciou-se a segunda etapa do trabalho, com definição das diretrizes de restauro e elaboração do projeto conceitual de arquitetura.

Apesar de serem necessárias alterações para melhorar o funcionamento do museu, não seria possível fazer grandes modificações, pois a importância histórica do edifício e seu tombamento nos três níveis de patrimônio impedem soluções com ampliações ou interferências radicais. Por isso optou-se pelo respeito ao projeto original de Niemeyer. A ideia foi propor restauração dos materiais degradados para recuperar a aparência original e prolongar sua vida útil, e recomposição dos elementos volumétricos que foram alterados.

As principais alterações nas fachadas serão notadas em três pontos. As janelas da administração serão reformadas para recuperar a leitura de janela linear em fita (tradicional na arquitetura moderna). Na área abaixo da administração (antiga entrada de serviço) as paredes não originais serão substituídas por painéis de vidro, recuperando a leitura visual de pilotis. A última intervenção será no espaço abaixo do auditório. Originalmente o espaço deveria ser um pilotis totalmente aberto, mas foi fechado com portas de ferro e vidro logo depois da inauguração. A proposta prevê o recuo do fechamento, deixando os pilares de mármore travertino visíveis na fachada, além da substituição das portas atuais por portas de correr de vidro, recuperando a leitura visual de pilotis.

 

As áreas de exposição terão suas janelas protegidas por películas de controle solar, que reduzirão a incidência direta de raios UV e preservarão a transparência dos vidros.

Todas as janelas e portas originais serão inteiramente restauradas, com troca de vidros manchados ou quebrados, substituição das peças metálicas corroídas e nova pintura. 

Para adaptar o edifício à acessibilidade universal estão previsas construção de sanitários especiais, instalação de elevador para conexão do subsolo com a área administrativa, instalação de plataforma inclinada para conectar subsolo com área de exposição, instalação de uma rampa na área externa e contratação de um funcionário para auxiliar pessoas com dificuldade de locomoção para acessar as rampas internas (esta medida é necessária pois as rampas existentes são muito inclinadas e não podem receber corrimãos ou ter sua inclinação alterada). Estas intervenções foram cuidadosamente estudadas para evitar interferências na arquitetura original.

A reserva técnica será transferida para outro local, que ofereça condições apropriadas para manutenção e conservação das obras de arte. Com o espaço liberado, novos espaços serão criados e outros reformulados, de forma a melhorar a experiência dos visitantes e, principalmente, melhorar o funcionamento do edifício como Museu. Estão previstas criação de um setor educativo e biblioteca abertos ao público e reorganização do setor administrativo. O sótão, antes fechado, será reformado e aberto a visitação, possibilitando que a população conheça os 'bastidores' do edifício e visualize sua complexa solução estrutural. 

Haverá ainda reforço estrutural para recompor os trechos de piso onde houve acomodação do solo. 

Todos os materiais nobres de revestimento receberão cuidados específicos de restauração. Será priorizada a restauração integral de cada peça existente. Somente nos pontos onde não for possível a recuperação do material original, será feita substituição por peças novas, mas com características idênticas. Os principais materiais que serão restaurados serão mármore amarelo negrais, mármore ônix, mármore travertino, granito juparaná, azulejo 'pampulha', espelhos dourados belgas, chapas de aço escovado e tacos de peroba do campo.

Todas as intervenções serão valorizadas por um projeto luminotécnico que dará destaque aos elementos importantes da arquitetura, e por um projeto de comunicação visual para orientação dos visitantes, que contará com informações bilíngues e identificação do uso original e atual de cada espaço.

A terceira e última etapa, finalizada em 2014, contemplou os projetos executivos de Arquitetura e Engenharia. Estes projetos detalham todos os elementos e processos de execução necessários para restauração completa do edifício. Foram desenvolvidos pela Horizontes Arquitetura os seguintes projetos: Arquitetura, Comunicação visual, Luminotécnico, Estrutura de Concreto, Instalações Hidrossanitárias, Instalações Elétricas, Cabeamento Estruturado, Alarme, SPDA-proteção contra descargas atmosféricas, Prevenção e Combate a Incêndio, Impermeabilização e Planilha de Quantitativos/Orçamento Estimativo).

Com o reconhecimento da Pampulha como Patrimônio Cultural da Humanidade, a prefeitura de Belo Horizonte assumiu um compromisso de executar a restauração completa dos edifícios em três anos. Assim, espera-se que as obras sejam iniciadas em breve.

Após a realização das obras o MAP, maior e principal museu público de Belo Horizonte, oferecerá melhores condições de visitação para o público. Será ainda restaurado e preservado, tendo seu tempo de vida útil prolongado. A continuidade de sua destinação como museu contribuirá ainda para a revitalização da região e para o resgate da memória urbana da Pampulha e de Belo Horizonte.